Městské divadlo a jeho historie










Dřevěné provizorní a nové městské divadlo
Po požáru empírového soukenického divadla na Sokolovském náměstí dala městská správa upravit cirkus společnosti Wulff, postavený v roce 1879, na prozatimní divadlo. Dřevěné provizorium s kapacitou asi 1500 diváků postavil během krátké doby Anton Worf, takže zde mohla již od počátku března 1880 hrát společnost teplického divadla, která dávala po dva měsíce činohru a operetu a hostovala v Liberci ve stejnou dobu i o rok později. Poslední představení, Goethovu Ifigenii na Tauridě, provedlo 2.5.1882 saské dvorní divadlo. Potom už musela náhradní scéna ustoupit stavbě kamenného divadla. Nejmenší domek se zahrádkou (čp.163-I) na prvním snímku vlevo (v roce 2020 je v této budově např. Zdravé opalování), byl v místech dnešní výškové budovy vysoké školy. Domy na obzoru, tzv. Bittnerbergel, stávaly u dnešního Šaldova náměstí. Nejvýše vyčnívá dům zvaný Papoušek.
Budova městského divadla, jak se původně nazývalo, patří mezi první stavby, které začaly měnit tvář vnitřního města. Nutnost postavit nový divadelní objekt vedla ke značnému spěchu při hledání architektů. Skromnost prostředků nakonec zabránila realizaci ze soutěže vzešlého vítězného projektu architektů Miksche a Niedzielského z Vídně a město se obrátilo na jinou vídeňskou kancelář F. Fellnera a H. Helmera, specializovanou na stavbu divadel.
Liberecká scéna však patřila k jejich prvním stavbám v Čechách. V
letech 1881 - 1883 ji realizovala firma Sachers a Gärtner. Základní
kámen byl položen 15.9.1881. Byl umístěn pod práh hlavního vchodu a
uvnitř měl vloženo pouzdro s pamětním listem popisujícím události
předcházející stavbě.
Další postup prací byl ovlivněn požárem
vídeňského divadla (8.12.1881), při němž zahynulo na 400 osob. Neštěstí
mělo za následek zpřísnění předpisů pro všechna divadlastavěná na území
celé tehdejší monarchie. Podle nich bylo nutno přepracovat liberecký
projekt tak, aby dostatečně dimenzovanéa bezpečné únikové cesty
umožňovaly rychlé opuštění budovyv případě požáru. Protože základy už
byly hotové a nebylo tedy nebylo možno zvětšovat obrys stavby, znamenaly
úpravysnížení kapacity divadla z původních 1050 na 850 diváků.
Neorenesanční ráz budovy vytvořil vzor pro další stavby ve středu města.
Renesanční inspirace se pro světskou architekturu stala téměř kanónem -
alespoň pro sedmdesáta a osmdesátá léta 19. století. Zadní trakt budovy
byl od počátku provozně málo vyhovující, a tak se hledalo řešení formou
přístaveb. Naštěstí nedošlo ani na návrhy z roku 1936 a ani na
plánovanou přestavbu (1950), ale pouze ke zpevnění základů a prohloubení
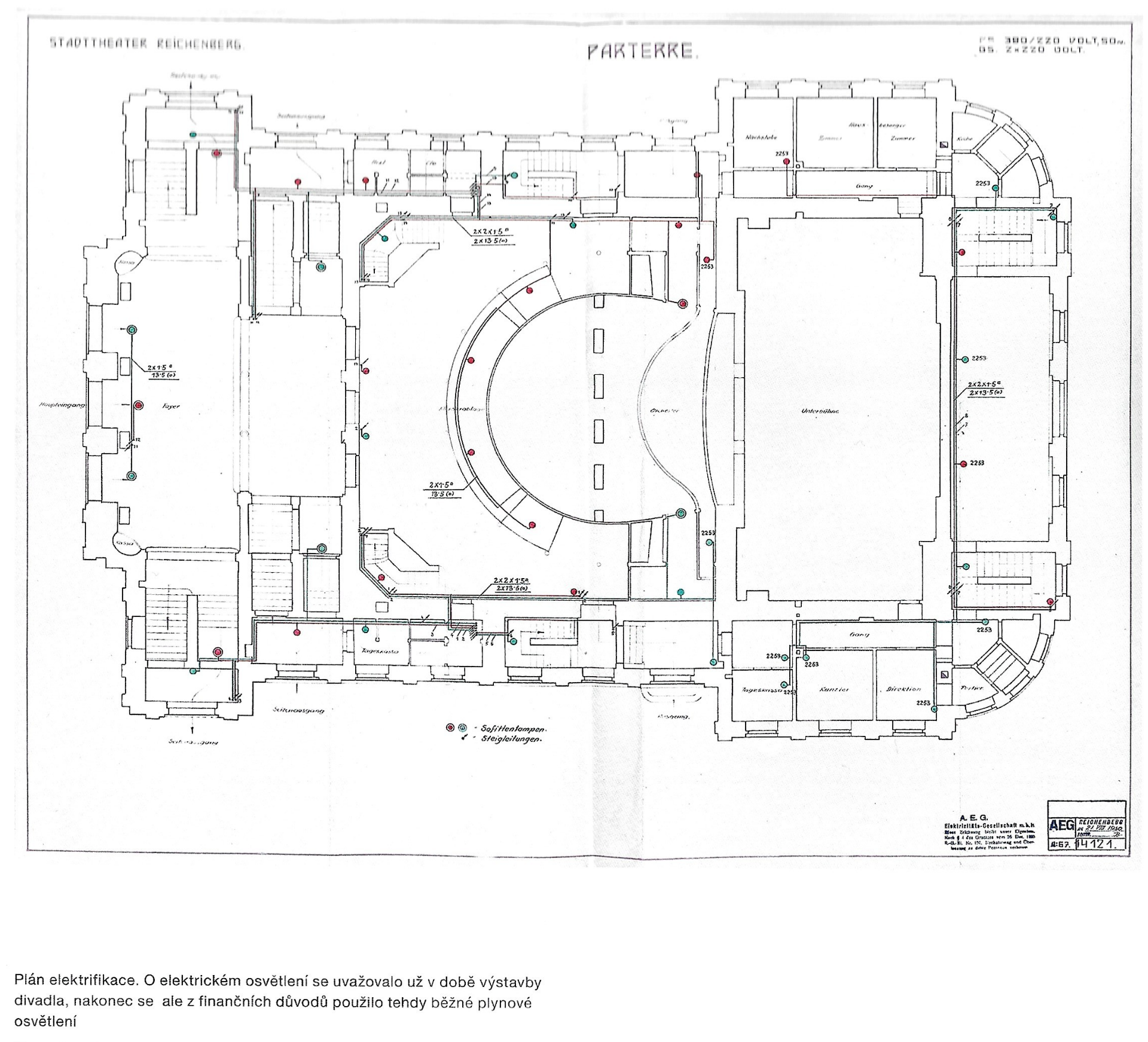
a zvýšení ryzalitu, čehož si všimne jen pozorný divák. (zdroj Kniha o Liberci)




















fotogalerie Václava Honzejka






Stavba nového divadla
Příběh budovy libereckého divadla, tehdy zvaného Městské (Stadttheater), se začal psát po tragickém požáru jeho předchůdce, Soukenického divadla. To stávalo na dnešním Sokolovském náměstí a postavil ho bohatý cech soukeníků. Představení se tam konala nepřetržitě od 15.října 1820 až do osudného požáru v dubnu 1879, kdy Soukenické divadlo kompletně lehlo popelem.
V té době byl Liberec hned po Praze druhé největší město v Čechách, při sčítání lidu v roce 1869 v něm žilo 22 394 převážně německých obyvatel. Představoval de facto metropoli severu Čech, bohatou a kulturní, pro jejíž uměnímilovnou veřejnost byl život bez divadla nemyslitelný. Proto městská rada usoudila, že musí jednat rychle, a ještě téhož roku, kdy vyhořelo staré divadlo, nabídla milovníkům dramatických umění aspoň divadlo prozatímní. Pro jeho potřeby nechala upravit dřevěný cirkus společnosti Wulf pro 1500 diváků, kde se hrála činohra a opereta v provedení najatých společnosti, například souboru z Teplic. Bylo však jasné, že Liberec potřebuje divadlo kamenné, moderní a velkolepé, svou reprezentativností odpovídající postavení nejvýznamnějšího německého města v Čechách.
Když chybí finance
Radní odhadli výši nákladů na stavbu nového divadla na 150 tisíc
zlatých, avšak městský rozpočet nebyl na tak nákladnou stavbu připraven.
Proto vyhlásil Divadelní spolek (Theaterverein), jenž měl stavbu nového
divadla na starosti, veřejnou sbírku a městská rada slíbila, že pokud
se podaří vybrat aspoň 50 tisíc zlatých, bude se moci začít stavět.
Liberečané požadovanou částku skutečně shromáždili, dalších 60 tisíc
zlatých přidala Liberecká spořitelna, a proto došlo vzápětí k vypsání
architektonické soutěže. Mezitím se ještě rozhodlo o umístění nové
divadelní budovy v tak zvaném Doliku, oblasti hned za domy na severní
straně hlavního náměstí.
Do
soutěže přišlo 20 návrhů, a tak bylo z čeho vybírat. Zvítězil projekt
vídeňských architektů Hanse Miksche a Heinricha Niedzielského, na druhém
místě skončil Bernhard Schreiber, architekt z Drážďan, přičemž vítězný
návrh byl oceněn částkou 1 200 zlatých a druhý v pořadí částkou 600
zlatých. Když však oba tyto návrhy posuzovali odborníci z hlediska
proveditelnosti, došli k jasnému závěru, že jejich realizace by vysoko
přesáhla původně stanovených 150 tisíc zlatých. Jednání s architekty o
snížení nákladů ztroskotala, a proto bylo město nuceno hledat jiné
řešení.
Požádalo tedy o vypracování úspornějšího projektu firmu vídeňských
architektů Ferdinanda Fellnera a Hermanna Helmera, specializovanou
především na divadelní budovy, které stavěla po celé Evropě. Fellner 8
Helmer pracovalí rychle, smlouvu podepsali v červnu 1881, a už na konci
srpna téhož roku dodali kompletní projekt, včetně rozpočtu. Ani oni se
však nevešli do stanoveného limitu 150 tisíc zlatých, stavbu libereckého
divadla totiž vyčíslili na více než 237 tisíc zlatých. Zastupitelstvo
města ale nakonec jejich návrh schválilo, přičemž za něj zaplatilo šest
tisíc zlatých a další čtyři tisíce za stavební dozor.
Výběrové
řízení na dodavatele stavby vyhrála liberecká stavební firma Sachers &
Gartner s cenou 227 393 zlatých, což bylo sice o 10 tisíc méně než
rozpočet architektů, ale stále daleko více, než se původně
předpokládalo.
Architekti Fellner a Helmer
Ferdinand Fellner byl syn vídeňského architekta Ferdinanda Fellnera
staršího. Pokračoval v otcových šlépějích, vystudoval architekturu na
Technické universitě ve Vídní a v roce 1870 nastoupil do otcovy firmy.
Hermann
Helmer pocházel z Hamburku. Nejdříve se vyučil zedníkem, pak vystudoval
stavební průmyslovku v Nierburgu/ Wesseru a následně Akademii
výtvarného umění v Mnichově. Poté nastoupil do ateliéru Ferdinanda
Fellnera staršího, shodou okolností ve stejném roce jako jeho syn.
O
tři roky pozděj, v roce 1873, založili Ferdinand Fellner a Hermann
Helmer společný ateliér, který rychle získal značné renomé a byl doslova
zahrnut zakázkami. Firma byla pověstná svou seriózností, pracovala
rychle a za přijatelné ceny, dbala na dodržování termínů i předběžných
rozpočtů a pečlivé vykonávání stavebního dozoru. Měla po celé Evropě
kolem dvaceti stálých kanceláří, kde pracovali architekti, projektanti i
stavební inženýři, což zajišťovalo v daném mistě soběstačnost pří
tvorbě a realizaci dalších projektů.
Dobrou
pověst ateliéru Fellner a Helmer nejspíše posilovaly i údajně přátelské
vztahy mezi oběma společníky, doložené délkou vzájemné spolupráce. Ta
trvala 43 let, až do Fellnerovy smrti v roce 1916, a uvádí se, že jejich
ateliérem prošlo za dobu jeho existence kolem 360 architektů, mnohdy
zvučných jmen.
Fellner & Helmer v Evropě i u nás
Pro tvorbu architektů Fellnera a Helmera byly charakteristické
historizující slohy: neogotika, neorenesance, neobaroko a
neoklasicismus, později i secese. Honosné a zdobné budovy z jejich dílny
měly mnoho obdivovatelů. Byly ale také terčem nelítostné kritiky
některých kolegů, kteří označovali populární historizující styl za
eklektický, tedy netvůrčí, nepůvodní a sterilní. Slavný švýcarský
architekt Le Corbusier označil při návštěvě Karlových Varů, do jejichž
celkového vzhledu ateliér Fellner & Helmer výrazně zasáhl, jeho styl
za "Slet šlehačkových dortů". To však nic nemění na tom, že projekty
ateliéru byly velmi oblíbené a firma neměla nouzi o zakázky.
Fellner
& Helmer postavili za dobu své spolupráce více než 50 divadel a
koncertních síní po celé Evropě. Kromě nich získali zakázky na velké
množství jiných staveb, od obytných domů, vil a paláců přes obchodní
domy, banky, hotely, restaurace, školy a průmyslové stavby až po
nemocnice, lázeňské budovy, rozhledny, hvězdárny i mauzolea. Dohromady
mají na svém kontě úctyhodných 225 staveb.
Řadu významných staveb z dílny jejich architektonického studia můžeme najít i na území naší republiky. Nejvíce jich je v Karlových Varech, např. Vřídelní kolonáda, kolonáda a koncertní sál u Sadového pramene, Tržní kolonáda, bývalé Císařské lázně (dnes Lázně), Národní dům, vila Chopin, Grandhotel Pupp či Goethova vyhlídka a další. V Ostravě, Olomouci a Trutnově stojí jimi projektované bankovní domy pro tehdejší Rakousko-Uherskou banku. Z průmyslových staveb u nás najdeme například tkalcovnu hedvábí S. Trebish a syn ve Vítkově a Šumperku, nebo správní budovu bývalé Mostecké uhelné akciové společnosti v Ústí nad Labem. Jsou podepsání pod romantickou přestavbou zámků Žinkovy či Pavlovice u Přerova, projektovali i hrobku rodiny průmyslníka Františka von Waldeka na Olšanských hřbitovech v Praze a další stavby. Celkem jich je u nás přes třicet.
Divadel tady postavili šest, kromě Liberce ještě v Praze, Brně, Karlových Varech, Jablonci nad Nisou a Mladé Boleslavi. Všechna dodnes slouží svému původnímu účelu a působí v nich stálé soubory. Občas s nimi bývá spojována také přestavba Městského divadla v Mariánských Lázních, ale tu projektoval architekt Alfréd Walcher z jejich vídeňského ateliéru.
Přerušení stavby
Sotva stavební firma Sachers &
Gartner zahájila v září 1881 práce na
stavbě nového libereckého divadla, zkomplikoval situaci požár divadla
Ringtheater ve Vídni. Kvůli němu museli stavitelé po necelých třech
měsících práce zastavit a přepracovat projekt tak, aby vyhovoval novým
bezpečnostním požadavkům.
Následky
požáru ve vídeňském divadle, který vypukl 8. prosince 1881, byly totiž
nebývale tragické. Zahynulo při něm kolem 400 diváků, ale přesné údaje
se rozcházejí. Divadlo pro 1 700 lidí bylo postaveno na malém půdorysu a
jeho úzké tmavé chodby a schodiště bez oken se staly pastí. Navíc
muselo být při požáru vypnuto plynové osvětlení, aby se oheň nešířil,
jenže záložní olejové osvětlení nefungovalo a na mnoha místech se lidé
ocitli ve tmě, což vyvolalo paniku. Další panika vypukla u nouzových
východů, jež se otevíraly pouze dovnitř, což bránilo plynulému odchodu
návštěvníků z budovy, a mnoho se jich tam umačkalo. Přitom Ringtheater
nebylo nijak staré divadlo, hrát se v něm začalo jen sedm let před
požárem, v roce 1874.
Není divu, že po této tragické události se významně zpřísnily
bezpečnostní požadavky na stavby divadel, protože právě v divadlech je
na malém prostoru velké množství lidí. A nová bezpečnostní opatření se
týkala i rozestavěných budov, což pro budovu libereckého divadla
znamenalo přepracování projektu. Stavbě to samozřejmě přineslo
komplikace, ale ve výsledku bylo nové liberecké divadlo bezpečnější.
Konkrétně
bylo nutné doprojektovat po obou stranách boční schodiště, aby v
případě požáru či jiného ohrožení existovalo více únikových cest.
Povinnou výbavou divadla se stala železná opona. Jejím úkolem je oddělit
v případě požáru jeviště od hlediště, aby se oheň nemohl šířit ze
zázemí do hledištní části a opačně.
Původní
projekt počítal se 718 sedaly a 262 místy k stání, dodatečné úpravy
snížily kapacitu divadla o 200 míst. Jen pro dokreslení, dnešní kapacita
divadla je 467 míst k sezení, s místy k stání se už nepočítá. K dalšímu
snížení kapacity došlo v souvislosti s pozdějšími rekonstrukcemi.
(zdroj: Jiří Jiroutek - Jarmila Levko - Liberecké divadlo 1883 - 2023, 2023)




Příběh divadelní opony
Divadelní opona je artefakt, mající v architektuře divadelní budovy zásadní význam. Je tím prvním, na co divák upře svůj pohled, když zaujme místo v hledišti, a na co se soustředí zejména těsně předtím, než začne představení. Když se opona zvedá, nastává moment očekávání a napětí. Odkrývá se jevištní dekorace, na scénu přicházejí herci, zpěváci či tanečníci.
Opona
libereckého divadla byla na doporučení architektů Fellnera a Helmera
svěřena začínajícím vídeňským malířům Gustavu Klimtovi, jeho bratru
Ernstovi a Franzi Matschovi. Gustavu Klimtovi bylo v té době 20 let a
právě ukončil uměleckoprůmyslovou školu ve Vídni. Se svým spolužákem
Franzem Matschem založil ještě za studií uměleckou společnost, kam záhy
přizvali i Gustavova mladšího bratra Ernsta Klimta. Opona pro liberecké
divadlo byla jedna z prvních zakázek této trojice.
Skicu
opony měli autoři předložit v prosinci 1882 a po jejím schválení dílo
dokončit do 1. června 1883. Smluvní cena činila 1 500 zlatých, jenže
malíři nedodrželi ani cenu ani termin. Oponu nakonec dodali až 10. září
1883, těsně před otevřením nového divadla, a cenu zvýšili o 300 zlatých.
O část zvednuté sumy ale údajně přišli platbou penále za nedodržení
termínu. Navzdory všem nepříjemnostem však Liberec nakonec získal pro
své nové divadlo pozoruhodné dílo, na které se ze všech koutů světa
jezdí dívat obdivovatelé tvorby Gustava Klimta (1862-1918), předního
představitele tzv. vídeňské secese a evropského výtvarného umění na
přelomu 19. a 20. století.
Triumf lásky
Ústředním motivem divadelní opony je alegorie s názvem Triumf lásky, jež
měla podle výkladu autorů vystihnout šíři repertoáru městského divadla.
Vzhledem k tomu mělo být široké i pojetí hlavní opony, usilující o
postižení veselého i vážného. Veselost symbolizuje svatební loď $ Amorem
na přídi, tažená bůžky lásky, amorky. Svatební veselí dokreslují
postavy svatebčanů, oblečené do kostýmů v benátském stylu z 16.století. V
popředí opony jsou pak jako protiklad postavy vážné, jež dotvářejí
symboliku veselých a vážných tváří umění. Tento ústřední obraz rámuje
široká bordura s menšími obrazy — po stranách alegorie tance, v rozích
dětské postavy a uprostřed v dolní části emblémy hudby a dramatického
umění.
Takto
náročné a prestižní dílo nebylo pro začínající talentované umělce
jednoduchou zakázkou. Byli na začátku tvůrčí dráhy, neměli dost
zkušeností, a proto špatně odhadli své časové možností i výši výdajů. Na
oponě o rozměru 72 mě pracovali téměř rok a trpěli nedostatkem peněz.
Mimo jiné totiž potřebovali zaplatit modely pro jednotlivé výjevy na
oponě, a právě kvůli omezeným financím si nemohli dovolit mít jich moc.
Snažili se vybírat si mezi členy rodiny a blízkými přáteli, kteří jednak
nepožadovali honorář, ale také byli ochotni stát modelem pro více
postav. Proto si pozorný divák může všimnout, že tváře některých figur
na oponě si jsou podobné. I tak je opona chloubou libereckého divadla a
nejcennější součásti jeho vybavení. Dnes se spouští jen při výjimečných
představeních a slavnostních příležitostech, především proto, aby se
chránila a zachovala pro příští generace.
(zdroj: Jiří Jiroutek - Jarmila Levko - Liberecké divadlo 1883 - 2023, 2023)







Bohové na římse
Hlavní průčelí divadla je orientované směrem k radnici. Z římsy na střeše shlížejí pískovcové sochy, zobrazující postavy a bohy z řecké a římské mytologie svázané s divadlem.
Nad
hlavním vchodem, na korunní římse, se nacházejí dvě sousoší s centrální
postavou doplněnou o dva bůžky. Vpravo stojí skupina představující
Umění, s postavou ženy držící pochodeň a nalévající olej do nádobky
držené bůžkem, jehož úkolem je šířit oheň dál. Druhý bůžek čte knihu,
symbol osvěty. Skupina vlevo zobrazuje Apollóna s lyrou jako vůdce Múz
se dvěma bůžky jedoucími na delfinech.
V
rozích římsy se nacházejí dvě římské bohyně. Napravo bohyně osudu a
štěstí Fortuna s rohem hojnosti a kormidlem, jímž řídí lidské osudy.
Nalevo pak Flora, bohyně radosti, květů a jara. Ty doplňují čtyři Můzy,
bohyně jednotlivých umění. Podle řecké mytologie jsou dcerami nejvyššího
boha Dia a bohyně paměti Mnémosyné. V pravém rohu korunní římsy je
zpodobněna Můza milostných básní a písní Erató s lyrou v ruce a Můza
tance Terspichoré. Nalevo najdeme Melpomené, Můzu tragédií a patronku
zpěvu, držící tragickou masku. Vedle ní pak Můzu komedie a veselého
básnictví Thálií s divadelní škraboškou v jedné a pastýřskou holí v
druhé ruce.
Divadlo nebylo vždy Šaldovo
Původní název dnešního Šaldova divadla byl prostý: Liberecké městské
divadlo, respektive Reichenberger Stadttheater, později s drobnou
úpravou Stadttheater Reichenberg. Název v němčině měl logiku, protože až
do konce druhé světové války byla většina obyvatel Liberce německé
národnosti.
Za
druhé světové války, v roce 1943, bylo divadlo přejmenováno na Bühne
der Gauhauptstadt (Scéna hlavního města Sudetské župy). To však netrvalo
dlouho, protože v roce 1944 byl zcela zastaven divadelní provoz. Tehdy
se totiž uvažovalo o přestavbě divadla na biograf, později dokonce o
stavebních úpravách na vojenský sklad. Ani jeden z těchto záměrů se
nakonec neuskutečnil, a tak se budova libereckého divadla dočkala konce
války bez zásadní újmy.
Divadelní život se do ní vrátil vzápětí po osvobození, protože už
13.května 1945 se tu odehrálo jedno ze dvou ruských představení. Den
nato se konala schůze divadelníků, kteří si ustavili závodní radu. Ta
převzala do své správy budovu a upravila pro divadelní účely prostory,
jež na konci války sloužily jako ubikace pro velitelství leteckého
oddílu. Dne 20. května bylo uspořádáno první české představení, koncert
pro Rudou armádu. Uprostřed léta, 1. srpna 1945, převzal chod divadla
Zemský národní výbor v Praze a divadlo bylo přejmenováno na Zemské
oblastní divadlo v Liberci, jež zahájilo činnost 15. září 1945.
Jeho
éra však netrvala dlouho. Provoz scény s 260 zaměstnancí byl velmi
nákladný, a hned v první sezóně došlo ke značnému schodku. Proto se
Zemský národní výbor už 31. července 1946 divadla zřekl s odůvodněním,
že nemá na jeho financování dost prostředků.
Ty nemělo ani město, proto divadlo dočasně převzala podniková rada a
opět ho přejmenovala, tentokrát na Severočeské národní divadlo (SND).
Podniková rada šetřila, kde se dalo, a v rámci úsporných opatření
zrušila operetní soubor v Jablonci nad Nisou, který tehdy pod liberecké
divadlo patřil. Brzy po zahájení nové sezóny Smetanovou Mou vlastí dne
3. srpna 1946 zaměstnanci založili družstvo, v němž byli zastoupeni
padesáti procenty, zbytek tvořilo město Liberec, Okresní národní výbor,
Obchodní a živnostenská komora, odbory, průmyslové podniky spolu s
živnostníky, armáda i peněžní ústavy. Družstvo pak divadlo provozovalo
až do konce roku 1949, kdy provoz převzal Krajský národní výbor. Tehdy
došlo k další změně jména na Severočeské divadlo Liberec. Pojmenování
Divadlo F. X. Šaldy v Liberci budova nese od 22. prosince 1957, kdy tady
měla u příležitosti Šaldových nedožitých 90. narozenin zdejší premiéru
jeho hra Dítě.
František
Xaver Šalda (1867-1937) nesporně patří mezi nejvýznamnější liberecké
rodáky. Byl vůdčí osobností generace devadesátých let 19. století,
dramatik, prozaik, překladatel z francouzštiny a angličtiny, ale
obzvláště uznávaný literární vědec, považovaný za zakladatele moderní
české literární kritiky. Přestože ve městě dlouho nežil, už v jeho
dětském věku se rodina odstěhovala nejprve do Čáslavi a později do
Prahy, město Liberec si jeho osobnosti váží. Dokládá to skutečnost, že
je po něm pojmenováno nejen divadlo, ale také náměstí v centru a jedno z
gymnázií.
(zdroj: Jiří Jiroutek - Jarmila Levko - Liberecké divadlo 1883 - 2023, 2023)





Kam zmizeli gryfové?
Podstavce před hlavním vchodem do divadla původně zdobily sochy gryfů
—bájných okřídlených zvířat s tělem Iva a hlavou orla. Tyto mýtické
bytosti mají svůj původ už ve třetím tisíciletí před naším letopočtem,
kdy představovaly starověké skytské božstvo, chránící zlaté poklady. S
nalezišti zlata v oblasti Střední Asie byli spojováni také v řeckých a
římských textech. Ve středověké heraldice se gryf stal křesťanským
symbolem božské moci a strážce božského světa, protože lev byl tradičně
považován za krále zvířat a orel za krále ptáků. Gryf byl tedy ve
středověku vnímán jako obzvláště mocný a majestátní tvor.
Pískovcové
sochy gryfů u vchodu do libereckého divadla však nepřežily složitou
dobu po skončení 2. světové války. Tehdy byli z naší země, především z
oblastí tzv. Sudet, odsunutí obyvatelé německého původu, a jejich místa
zaujali Češi z vnitrozemí. Nové české obyvatelstvo vnímalo mýtické gryfy
jako symbol germánství, podobně jako třeba sochu rytíře na nejvyšší
věži radnice, a takové symboly bylo třeba odstranit. Proto byly gryfové z
podstavců před divadelní budou odvezeni neznámo kam a ani se neví, co
se s nimi stalo. Údajně byly jejich plastiky rozdrceny a skončily jako
podloží při budování libereckých silnic, ale žádné záznamy o tom
neexistují. Už od roku 1945 jsou tedy podstavce po stranách schodiště
před vchodem do divadla prázdné.
(zdroj: Jiří Jiroutek - Jarmila Levko - Liberecké divadlo 1883 - 2023, 2023)


figury bájných greifů s okřídleným lvím tělem a orlí hlavou
zmizely v roce 1945, když byly mylně chápány jako symbol germánství.



Úprava náměstí před divadlem v roce 1938
V dubnu 1937 upozornil stavební úřad městskou radu na špatný stav dlažby za radnicí, načež bylo navrženo tento prostor vyasfaltovat. Náklady na přestavbu včetně chodníku před před radnicí měly představovat 830 000 korun. Na základě výběrového řízení rozhodla městská rada zadat práci firmě ing. Rezek a Porsche z Liberce, dláždění mistru dláždičského Theodoru Pohlovi, asfaltovat měla K.F.Mezel z Bílého Potoka a výměnu kanalizace provést liberecká firma Jakob Fiedler. Zároveň se řešila otázka plynového osvětlení, dodávajícího prostoru před divadlem poetickou náladu. Odborná komise tehdy doporučila odstranění plynových kandelábrů, protože prý nemají žádnou uměleckou cenu. Elektrické podniky města pak navrhly osvětlení částečně jednosměrným a z části střídavým proudem. Kopie kandelábrů se před divadlo vrátily až po padesáti letech. Aby bylo vše provedeno v co nejkratším čase, mělo se pracovat na dvě směny. Parkoviště taxíků bylo proto přesunuto na Sokolovské náměstí. Na čtvrt metru silný betonový podklad byla položena pěticentimetrová vrstva asfaltu, vyasfaltovaný byly i chodníky proti poště. Úprava nebyla dokončena ani do záboru pohraničí v říjnu 1938 a ještě 4.listopadu podala firma Rezek fakturu na 2975 korun za půjčení válce při úpravě náměstí, přejmenovaného už na Hitlerovo. (zdroj Kniha o Liberci)








































































































První výrazné úpravy, padesátá léta a počátek let šedesátých 20. století
Divadelní budova sloužila svému účelu zcela uspokojivě po mnoho desetiletí, až teprve v polovině minulého století se na ní začal projevoval zub času. Protože se tehdy už delší dobu hovořilo o nedostatku prostor v zázemí, vznikla počátkem padesátých let myšlenka dostavby postranních křídel, jejíž projekt byl svěřen architektům Augustinu Šimůnkovi a Karlu Winterovi. Tato dostavba v moderním stylu by jistě problém vyřešila, zásadně by však změnila vnější vzhled budovy. Naštěstí zůstalo jen u projektu, především z finančních důvodů, neboť rozpočet na dostavbu byl pro tehdejší reprezentaci města příliš nákladný.
V roce 1956 došlo k menším úpravám v interiéru divadla, konkrétně v hledišti. Podle návrhu Svatopluka Technika byla uprostřed prvního balkonu přistavěna nová osvětlovací a zvuková kabina, která nahradila tu původní, umístěnou v zázemí nad jevištěm. V přízemí a na prvním balkoně vznikly přepažením prostoru nové lóže, dvě napravo a dvě nalevo, v podobě známé dodnes.
Počátkem šedesátých let se v zadní části budovy směrem do Sokolské ulice
objevily nebezpečné praskliny, dokládající nedostatečně hluboké základy
v této části stavby. Proto se rozhodlo o přestavbě celého zadního
traktu budovy divadla a projekt na ni byl zadán libereckému architektovi
Karlu Winterovi. Ten kromě prohloubení základů nakreslil i zadní
přístavbu technického prostoru pro navážení kulis. Přestavba probíhala
mezi lety 1964 až 1966. Částečné prohloubení základů a dostavba zadního
traktu však vyřešily jen část nejpalčivějších problémů a bylo jasné, že
divadelní budova potřebuje větší rekonstrukci, jež na sebe nenechala
dlouho čekat.
(zdroj: Jiří Jiroutek - Jarmila Levko - Liberecké divadlo 1883 - 2023, 2023)



























































Kde byly sklady divadla?


Otto Stadler, barevna a apretura (dnes Plaudit)
po druhé světové válce nebyla výroba obnovena a byly zde sklady divadla












